Lote plano no Guarujá Mansões com projeto aprovado, BETIM
Ref.: 858
R$ 400.000,00

Descrição

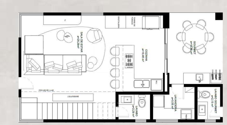
Lote plano no bairro Guarujá Mansões, em Betim, já com projeto aprovado na prefeitura.

Sobre o bairro
O Guarujá Mansões é um bairro planejado que vem crescendo bastante nos últimos anos, com muitas construções novas e constante valorização.
Está localizado a cerca de 5 km do Centro de Betim, oferecendo fácil acesso a comércios, serviços e às principais vias da cidade.

Dimensões

360,00m² (m²) Área do Terreno

Localização

Chamar no WhatsApp Agora!
Compartilhe